令和5年一級建築士学科試験 構造の問題
[mathjax]
〔No. 1〕 図のような集中荷重Pを受ける梁A及びBの荷重点に生じるたわみδAとδBとの比として、正しいものは、次のうちどれか。ただし、梁A及びBは同一断面で、全長にわたって等質等断面の弾性部材とし、自重は無視する。
|
|
解答と解説
〔No. 2〕 図のような断面積が一定で長さが3lの部材において、a、b及びcの位置における断面の図心にそれぞれ軸方向力P、P及び 2Pが矢印の向きに作用するとき、「a-b間の軸力」と「cの軸方向変位」との組合せとして、正しいものは、次のうちどれか。ただし、部材は全長にわたって等質等断面の弾性部材とし、自重は無視する。また、部材の断面積をA、ヤング係数をEとする。
|
|
解答と解説
〔No. 3〕 図- 1 のような水平荷重Pを受けるラーメンにおいて、Pを増大させたとき、そのラーメンは、図- 2 のような崩壊機構を示した。ラーメンの崩壊荷重Puの値として、正しいものは、次のうちどれか。ただし、柱、梁の全塑性モーメントの値は、それぞれ 400 kN・m、200 kN・mとする。
- 225 kN
- 300 kN
- 375 kN
- 500 kN
解答と解説
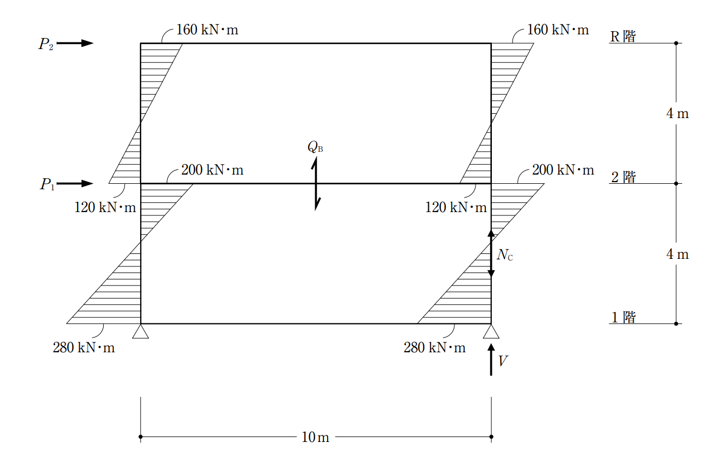
〔No. 4〕 図は、2層のラーメンにおいて、 2 階に水平荷重P1、R階に水平荷重P2 が作用したときの柱の曲げモーメントを示したものである。次の記述のうち、誤っているものはどれか。ただし、全ての部材の自重は無視する。
- 2 階に作用する水平荷重P1 は、100 kNである。
- 2 階の梁のせん断力QBは、64 kNである。
- 1 階右側の柱の軸方向圧縮力NCは、128 kNである。
- 右側の支点の鉛直反力Vは、152 kNである。
解答と解説
〔No. 5〕 静定トラスは、一つの部材が降伏すると塑性崩壊する。図のような集中荷重Pを受けるトラスの塑性崩壊荷重として、正しいものは、次のうちどれか。ただし、各部材は、断面積をA、材料の降伏応力度をσyとし、断面二次モーメントは十分に大きく、座屈は考慮しないものとする。また、全ての部材の自重は無視する。
|
|
まずは、一番大きく荷重を負担している部材を見つける必要がありますよ。
解答と解説
〔No. 6〕 次の架構のうち、静定構造はどれか。
解答と解説






